您当前使用的浏览器版本过低,可能存在安全风险,建议升级浏览器,或者用以下浏览器浏览
瑧湾汇最新整体备案均价约62500元/㎡。该项目于9月12日备案了5号楼132套房源,包括44套建面约143㎡产品,88套建面约198㎡产品,带精装交付。瑧湾汇位于广发南市政府旁,与市政府为邻,占据行政文化中心最后一块“留白”之地,是东莞发展30余年的精华所在。项目周边涵盖中心广场、市民中心、康帝酒店、汇一城、国贸城、图书馆、市政公园等地标级城市配套,更是万科城区“瑧系”三盘的首发之作。
说起东莞的大平层产品,就不得不提起瑧湾汇。瑧湾汇,是万科斥资重金打造的豪宅标杆之作,创下了三开三摇三售罄的战绩。
此次9月12日的备案距离瑧湾汇上次有新品备案(6月2日)已经有3个月之久,距离该项目上次有同样产品(143-198㎡户型)入市更是相隔了足足半年。根据东莞市住建局数Kaiyun App下载 全站据,这已经是瑧湾汇项目的第五次备案,最新整体备案均价约62500元/㎡。


项目建面约300㎡的户型非常值得解读一番。独立电梯厅、入户主仆双动线米超大面宽的客厅、让你在家中也能打高尔夫的大阳台、酒店总统套房级别的主卧、3个卧室朝南、『4+1』房神户Kaiyun App下载 全站型,几乎满足了顶奢户型的所有美好想象!
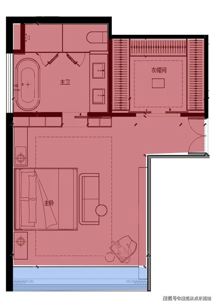
两梯两户,电梯直达室内玄关,入户处设置玄关衣帽间,从进门开始,就能让你卸下精神的盔甲,尽享归家的轻松与愉悦。户型更设置主仆双动线设计,划分保姆家政动线与主人活动动线,迎宾更有面,豪横气场堪称大平层中的天花板。

南北通透,通风采光足,把阳光清风“请”进家。在空间格局上,该户型四开间均是朝南,全屋开间朝南尺度拉伸达到约20.5米,采光通风更胜一筹。

景观阳台:长约12.3米,进深约2.4米的超级大阳台,在这里打打高尔夫球,享受片刻的宁静,累了的时候还可以坐在草地上,品茗看书,生出无尽的意趣。
客餐厅:宽敞独立的大方厅设计,整个空间超过100㎡,客厅8.1米超大面宽,仿佛星级酒店般餐客厅,夸张到可以在这里自由奔跑,而且拥有豪宅标配中西厨房、品茶区,兼有私密会客、小众宴请等多重高级社交功能。

Plus主卧套房:开间约4.6米,配备双洗手盆、大浴缸、独立衣帽间,堪比五星级酒店总统套房的既视感!

休息区:『4+1』房+4卫、三套房设计、三个卧室朝南、动静分区,互不打扰,如此稀缺的“爆款户型”,试问还有谁?

三间卧室都是开间朝南,内设干湿分离明卫与衣帽间的独立套房,并且老人房朝南外置景观阳台,将IMAX级景色揽入室内。除此之外,所有房间的开间竟都做到了约3.6米以上!
值得一提的是,得房率高低直接影响居住舒适性,高层的建筑物得房率约为72%,但瑧湾汇得房率达到82%,同等户型面积下,相当于多得一个30㎡套房主卧面积。
瑧湾汇,不仅仅是人居改善产品,更多的是代表城市发展格局的门面,占有了目前乃至未来东莞最核芯的城市资源,包括:东莞市政府、国贸中心、汇一城、黄旗山等等。

对于高净值圈层而言,他们享受出则繁华居享宁静的生活,而地处南城行政文化中心的瑧湾汇,正好探索出匹配高净值圈层的大平层,刚好满足他们的居住需求。再加上,这里不仅圈层纯粹,而且生态低密。
瑧湾汇这个项目的出现,不仅弥补了南城行政文化中心高端住宅的遗憾,更是以非凡的地段和高规格的定位,重新定义东莞优质的大平层产品。此外,万科物业让服务更有温度,为业主资产保值增值保驾护航。
还有一点,高阶的建筑立面,是奢宅的表现符号。瑧湾汇采用顶奢住宅才会选择的品质铝板外立面,用简洁的设计语言,勾勒出时尚而高级的质感,一众瞩目中更加烨烨生辉。
<img target="_blank" href="http://9999rh.com" src Kaiyun App下载 全站=https://t1.focus-img.cn/sh740wsh/zx/duplication/578c076c-b99c-414b-86eb-9447a0fb69cf.JPEG />
以上就是瑧湾汇的最新房价情况及户型相关信息。有兴趣了解瑧湾汇更多信息的朋友可以拨打项目详情电线【专人接听】,或添加微信:souhujiaodiandg咨询,即可了解在售户型图、项目介绍、最新特价房源、周边配套、预约看房等等信息!
声明:本文由入驻焦点开放平台的作者撰写,除焦点官方账号外,观点仅代表作者本人,不代表焦点立场。
根据东莞市住房和城乡建设局数据显示,2023年10月04日东莞新建商品房成交21套,较昨日增加13套,环比上涨162.5%
根据东莞市住房和城乡建设局数据显示,2023年10月03日东莞新建商品房成交8套,较昨日减少26套,环比下降76.5%
根据东莞市住房和城乡建设局数据显示,2023年10月02日东莞新建商品房成交34套,较昨日减少13套,环比下降27.7%
【东莞成交周报】第40周新房成交2289套,二手房277套,涨价房源253套
进入2023年第40周(09月25日-10月01日),东莞新建商品房成交2289套,较上周增加341套,环比上涨17.5%
根据东莞市住房和城乡建设局数据显示,2023年09月30日东莞新建商品房成交141套,较昨日减少79套,环比下降35.9%
郑重提示:本网站作为房产信息聚合类导航网站,仅为方便广大用户掌握信息而提供一站式无偿浏览、查阅的功能,本站楼盘信息并非广告,最终请以政府部门登记备案及开发商公布为准。错误信息举报电话,邮箱 .cn。 或点此进行意见反馈,也可点此进行举报投诉。